macchine per caffè espresso

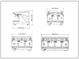
Ingombri OPERA 5

macchine per caffè espresso

da chi le macchine le pensa, le progetta e le produce